Año 2024 / 25
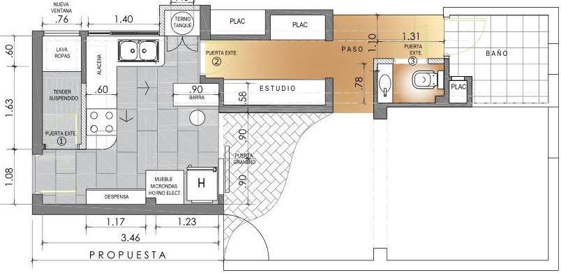
Remodelación parcial de semipiso 90 m2 + re funcionalización y remodelación completa de núcleo sanitario y servicios, 50 m2. B° Recoleta, CABA.











2da etapa de intervención. Diseño de mobiliario y equipamiento. B° Recoleta, Caba.






Año 2023
Re funcionalización + remodelación completa de núcleo sanitario para departamento de alquiler temporario. B° Recoleta, CABA.
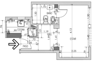
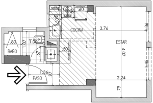
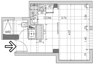
2° etapa de intervención / ampliación sobre altillo existente de una vivienda unifamiliar tipología dúplex. Villa Lugano, CABA.
Año 2022
Remodelación parcial de semipiso en torre 150 m2 + refuncionalizacion y remodelación completa de núcleo sanitario y servicios, 50 m2. B° Recoleta, CABA.
Remodelación completa de una vivienda unifamiliar tipología dúplex y ampliación sobre altillo existente para familia tipo, 150 m2. Villa Lugano, CABA.
Año 2021
Remodelación completa de semipiso en edificio de estilo para vivienda y taller de artista plastica, 60 m2. Avda. Córdoba y Esmeralda, CABA.
Remodelación de núcleo sanitario completo en vivienda unifamiliar, tipología Casas Baratas. B° Flores, CABA.
Año 2020
Remodelación completa de semipiso en edificio de estilo para despachante de aduana, 80 m2. Avda. Jujuy y Belgrano, CABA.
Año 2019
Ambientacion y equipamiento departamento en PH para alquiler temporario, 30 m2. Juncal y Azcuenaga, CABA .








Año 2018
Proyecto y remodelación departamento en PH para inversor, 30 m2. Juncal y Azcuenaga, CABA .




Proyecto y remodelación cocina en vivienda unifamiliar, 20 m2. Villa Devoto CABA .




Año 2017
Proyecto y remodelación departamento en PH para inversor, 35 m2. Güemes y Araoz, CABA .
Año 2011
Proyecto, dirección y remodelación. Departamento para alquiler temporario para extranjeros, 35 m2. Laprida y Charcas, CABA.
Año 2006
Proyecto, dirección y remodelación. Vivienda unifamiliar, 385 m2. OLIVOS – Ptdo. de VICENTE LOPEZ / Pcia. de Buenos Aires




