Saltar al contenido
DUARQ srl
arquitectos que construyen
Menú
+
×
expandido
cerrado
Inicio
¿ Quienes somos ?
Proyectos
Vivienda
Comercio
Salud
Educación
Contacto
Previous Image
Siguiente imagen
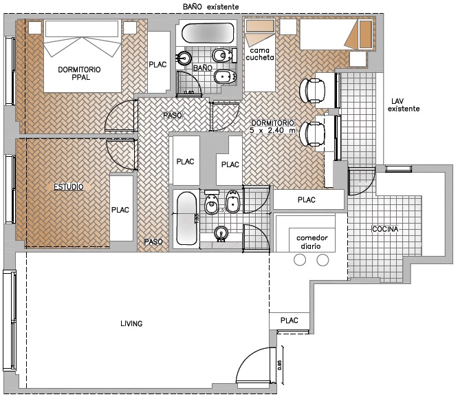
8yri797-1
Propuesta
Navegación de entradas
Publicado en
Proyectos
Deja un comentario
Cancelar la respuesta
Δ
Privacidad y cookies: este sitio utiliza cookies. Al continuar utilizando esta web, aceptas su uso.
Para obtener más información, incluido cómo controlar las cookies, consulta aquí:
Política de cookies
DUARQ srl
Regístrate
Iniciar sesión
Copiar enlace corto
Denunciar este contenido
Gestionar las suscripciones